ПОЗВОНИТЬ +7 499 130 75 70

Ломоносовский проспект, 25к5

ЛОТ 30609 Д
Метро: Университет (1 мин)

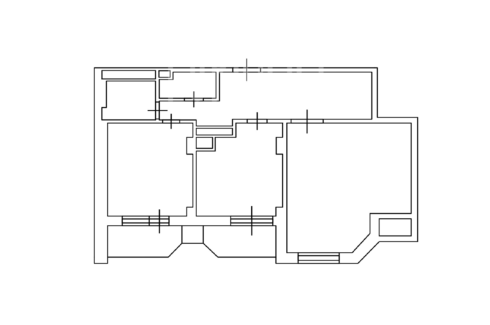
Продажа 3-комнатной квартиры площадью 98 кв.м. Метро Университет, 1 минута пешком. Ломоносовский проспект, дом 25к5. ЖК Доминион. Квартира без отделки, вариантов без отделки в ЖК практически нет. Планировка линейная. Есть машино-место в подземном паркинге, в стоимость не входит.


Планировка: кухня-гостиная, 2 спальни, 2 с/у, 2 лоджии.

$
£
909.436 $
9.280 $ / м2
70.000.000
714.286 / м2
682.195 £
6.961 £ / м2
778.633 €
7.945 € / м2
Позвонить
Детали лота:
Площадь общая:
98 м2
Площадь кухни:
15 м2
Количество комнат:
3
Этаж:
5
Состояние:
без отделки
Смотреть еще
посмотреть планировку
ondemand_video посмотреть видео ЖК
Похожие предложения:
ЖК Доминион

Элитный жилой комплекс, расположенный в районе Раменки. В его состав входят 7 элитных жилых домов переменной этажности от 9 до 19 этажей, построенных по индивидуальным проектам. Всего в комплексе 1500 квартир, начиная от компактных однокомнатных квартир и заканчивая пятикомнатными апартаментами и пентхаусами, площадью от 60 до 622 квадратных метров и высотой потолков от 3 м. В пентхаусах выполнено витражное остекление по особому дизайнерскому проекту, установлены зимние сады и настоящие камины. Первые этажи зданий отделаны натуральным гранитом, а жилые этажи - высококачест-венным облицовочным материалом. Подъезды отличают красиво оформленные входные группы. Холлы и лифтовые площадки на первых этажах выполнены по индивидуальным дизайн-проектам с применением высококачественных материалов. Все секции оборудованы лифтами Sigma.



Внутренняя инфраструктура
: бассейн, спа-салон, велнесс-центр, химчистка, магазины, аптеки, банки, есть собственный детский сад и школа. На территории комплекса оборудованы детские площадки, различные спортивные площадки, площадки для выгула и дрессировки собак, специальные беговые и велосипедные дорожки, цветники. Двухуровневая подземная автостоянка на 3200 машиномест с возможностью доступа с помощью лифта. Комплекс круглосуточно охраняется, ведется видеонаблюдение, КПП.



Внешняя инфраструктура
: в 2 минутах станция метро Университет. Кинотеатр Каро Фильм и ТРЦ Капитолий, множество магазинов одежды и обуви, а также ресторанов, кафе. Поликлиники, школы, цирк на проспекте Вернадского, театр Армена Джигарханяна, гольф-клуб, продуктовые магазины, банки, автозаправки, МГУ. В пешей доступности находится парк им. 50-летия Октября, с несколькими озерами и рекой Раменкой.

Полное описание
вы можете отрегулировать показ похожих этими кнопками
close